Neubau der Ozonung auf der Kläranlage Berlin Schönerlinde – ein Großprojekt mit Herausforderungen

Fotos © spiekermann ingenieure: Betonage der Bodenplatte für die Ozonung

Herr Joormann, Sie leiten als Generalplaner das Projekt „Ozonung Berlin, Schönerlinde. Wozu braucht man eine Ozonung?

Dirk Joormann: Mit dem Bau der Ozonung soll der Eintrag von anthropogenen Spurenstoffen wie u.a. Ibuprofen, Diclophenac, Microplastik etc. im Abwasser deutlich reduziert werden.

Die Kläranlage Berlin Schönerlinde ist eine von vier Leitkläranlagen in Berlin. Das zurzeit gereinigte Abwasser der Kläranlage wird über Gräben in den Tegeler See abgeleitet und durchfließt vorab die OWA-Tegel. Der Tegeler See ist unter anderem für die Trinkwasserversorgung der Stadt Berlin von großer Bedeutung. Am östlichen Ufer des Sees befindet sich das Wasserwerk Tegel mit seinen am gesamten Ufer liegenden Brunnengalerien, die der Förderung von Trinkwasser dienen (Trinkwasserschutzzone I und II). Für die wasserbehördliche Betriebserlaubnis der Wasserwerke ist die Überwachung bestimmter Parameter zur Einhaltung der Grenzwerte notwendig. Diese Parameter werden u.a. im Klärwerksablauf gemessen.

Diese 4. Reinigungsstufe schließt sich an die bestehende mechanische und biologische Abwasserreinigungsstufen an. Durch die Zugabe von Ozon werden diese Spurenstoffe zerschlagen und danach durch eine Flockungsfiltration eliminiert.

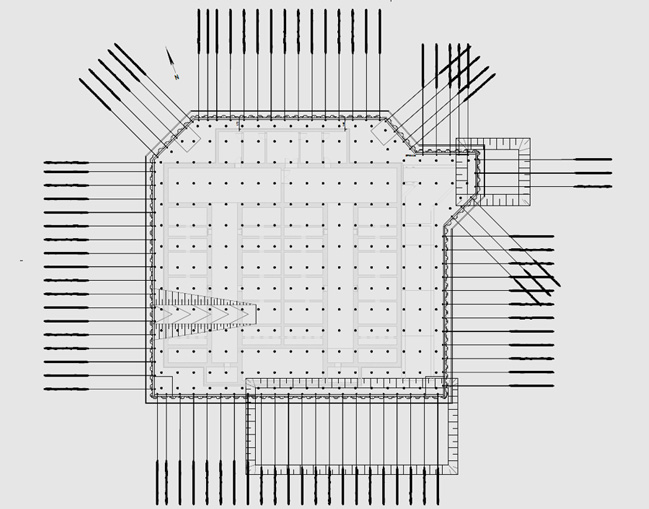
Schönerlinde 01 Prinzip Ozonung
Prinzipieller Aufbau der Ozonung (4. Reinigungsstufe) Schönerlinde mit seinen Kaskaden

Was war bislang aus Sicht des Bauingenieurwesens die größte Herausforderung?

Wo fange ich da an? (lacht) Bleiben wir bei der Ozonung.

Schönerlinde 02 Maschinenhaus
Entwurfskonzept Maschinenhaus Ozonung

Das Gebäude für die Ozonungsanlage besteht aus mehreren Etagen und wird als komplette Betonkonstruktion erstellt. In der untersten Etage befinden sich die vier Ozonreaktoren, in der darüber liegenden Etage befinden sich die maschinentechnischen Komponenten wie Ozongeneratoren, Messeinrichtungen, etc.

Marcus
Marcus v. Rissenbeck, Abteilungsleiter Ingenieurbau

“Wir haben ein Gebäude mit Entwurfsgrundsatz a gemäß WU-Richtlinien geplant und sogar ausgeführt – das ist schon etwas ganz Besonderes.”

Die Herausforderung liegt grundsätzlich in der zeitgerechten Planung und Ausführung der hochkomplexen Anlage, für die in allen Planungsvorgaben der höchste Entwurfsgrundsatz im WU-Konzept gefordert wird (Anmerk.: Sammlung von Standards für den Bau wasserundurchlässiger Betonbauwerke). Das bedeutet zum Beispiel eine rissfreie Betonkonstruktion. Daraus folgen besondere statische und betontechnologische Herausforderungen an unsere Planung wie auch an die Bauleitung im Rahmen der Realisierung.

Da es in Deutschland zurzeit kein vergleichbares Projekt dieser Größenordnung gibt, hatte sich der Bauherr für die Herstellung eines Probebauteils entschieden. Wir wollten vorab Erkenntnisse zur baustellenpraktischen Anwendbarkeit der gewählten Betonrezeptur gewinnen, insbesondere Erkenntnisse zum Temperaturverlauf des Betons während der Erhärtungsphase sowie der Rissbildung. Ziel war es, am Ende anhand des Probebauteils die beste Betonrezeptur und Herstellungsweise für die später an der echten Baukonstruktion zu erstellenden Teile der Ozonung zu definieren (Details siehe unten).

Joormann Dirk
Dirk Joormann, Geschäftsbereichsleiter Wasser und Umwelt

“Wir brauchten einen statischen Ansatz, um eine rechnerische Rissbreite von 0,00 mm zu erreichen!”

Grundlage hierfür sind die von uns in der Funktion als Generalplaner gemeinsam mit dem Kunden im detaillierten WU-Konzept und der Statik für die Ozonung festgelegten Parameter und Randbedingungen. Das DAfStb (Anm. d. Red: DAfStb – Deutscher Ausschuss für Stahlbeton e. V.) definiert als Entwurfsgrundsatz „Vermeidung von Trennrissen durch die Festlegung betontechnischer und konstruktiver Maßnahmen“. Das mussten wir berücksichtigen und das hieß grundsätzlich, wir brauchten einen statischen Ansatz, um eine rechnerische Rissbreite von 0,00 mm zu erreichen!  

Eine Rissbreite von 0,00 mm hört sich fast unmöglich an. Was bedeutet das für die Projektarbeit?

Wir bauen gemeinsam mit unserem Arge-Partner AFRY dort kein gewöhnliches Bauwerk, deshalb müssen wir mit hohen Ansprüchen an Planung und Umsetzung umgehen. Alle Maßnahmen wurden unter dem Gesichtspunkt der „Ozonbeständigkeit“ geplant. Um die Rissefreiheit nach der Betonage der Wände sicherzustellen, wurden in den Wänden Hydrationsgassen angeordnet, damit die entstehende Hydrationswärme während des Abbindeprozesses abgeführt werden kann.

Vielen Dank für diesen interessanten Einblick, Herr Joormann. Wir wünschen Ihnen und dem Projektteam weiterhin viel Erfolg!


Schönerlinde Akkordeon Grundriss

Grundriss der Ozonreaktoren

Schönerlinde Akkordeon Akarden

Blick in die fertig gestellten Kaskaden

Schönerlinde Akkordeon Lageskizze
Schönerlinde Akkordeon Verkehrsanlagen

Extrakt aus der Verkehrsanlagenplanung

Erstellung der Probewand

Das Probebauteil wurde unter realen Bedingungen einschließlich Fuge zwischen Sohle und Wand, Drain-Schalungs-Vlies auf der Baustelle erstellt.

Schönerlinde Akkordeon Probewand

Analyse der Bewehrungsführung Wände Ozonung

Gemäß unserer Planung und der hohen Anforderungen an das Bauwerk – Thema Rissefreiheit – ergibt sich ein hoher Bewehrungsanteil.

Um die Temperaturentwicklung infolge abfließender Hydratationswärme am Bauwerk Ozonung zu dokumentieren und um Erfahrungswerte für die nächsten Betonagen zu sammeln, wurde durch externe Fachberater ein permanentes Temperaturmonitoring am Probebauteil umgesetzt.

Die Betonprüfung der Probewürfel richtete sich nach DIN bzw. den entsprechenden sich aus dem Entwurfsgrundsatz ergebenen Anforderungen, definiert durch die Berliner Wasserbetriebe und uns als Generalplaner. Diese Punkte führten zu der Entscheidung, eine Probewand zu erstellen und zu analysieren. Aus den Ergebnissen wurden dann die betontechnologischen Maßnahmen (WU-Konzept, Betonrezeptur, Nachbehandlung) wie auch eine Anpassung der Bewehrungsführung vom Generalplaner angepasst und in der Ausführung durch die Baufirma umgesetzt. Alle Maßnahmen wurden unter dem Gesichtspunkt der „Ozonbeständigkeit“ geplant.

Planung und Erstellung der Baugrube und Bodenplatte
Die Planung der Bodenplatte beinhaltete ebenso den Entwurfsgrundsatz mit einer Rissbreite von 0,00 mm, um die Ozonbeständigkeit besonders in den Ozonkaskaden zu gewährleisten. Die mit Spundwänden und seitlicher Verankerung / Gurtung Verbaute Baugrube der Ozonung hat ein Ausmaß von 45,0 x 43,50 m und eine Aushubtiefe ca. 7,76 m.

Da keine Wasserhaltung in diesem Bereich vorgesehen war, wurde der Bauwerkskörper auf einer 1,0 m dicken Unterwasserbetonsohle, abgesichert mit Gewi-Verpresspfähle S 500/550 S (d=0.32 m, l = 10,0 m) gegründet. Nach Erstellung der Unterwasserbetonsohle (C25/30) und Abpumpen des Grundwassers, wurde die Beton-Bodenplatte (d=1,0 m) auf einer Kies-Ausgleichsschicht (h=0,30 m) erstellt.

Schönerlinde Akkordeon Baugrubenplanung

Schema Baugrubenplanung / Maschinenhaus Ozonung / Lage Gewi-Pfähle und Spundwandverankerung

Schönerlinde Akkordeon Baugrubenplanung Detail

durch einen Bereich der Baugrube mit Unterwasserbeton, Gewi-Pfähle und Gurtung

Das gleiche Verfahren wurde für den Bereich der Ablaufmengenmessung mit seinen Vor-, Mess- und Probeentnahmeschacht durchgeführt.

Planung und Erstellung der Wände und der Decke

Durch die hohen Anforderungen, gegeben aus dem gewählten Entwurfsgrundsatz, wurden auch die Wände und Decke der Ozonung angepasst. Um die Rissefreiheit nach der Betonage der Wände sicherzustellen, wurden zusätzlich in den Wänden Hydrationsgassen angeordnet, welche dazu Sorge tragen sollen, dass die im Rahmen des Abbindeprozesses des Betons die entstehende Hydrationswärme abgeführt werden kann. Die Erstellung der Wände erfolgt in mehreren Bauabschnitten und im Pilger-Schritt-Verfahren.


Information zu den Rahmendaten des Projekts finden Sie auf der Projektseite. Von dort kommen Sie auch zu unseren anderen tollen Projekte. Wenn Ihr Herz für genau solche Themen schlägt: Schauen Sie doch direkt mal bei den Stellenanzeigen vorbei.